Moderní, nadčasová, elegantní

520 m2

Plocha celkem

38 m2

Terasy + 63 m2 servisní terasy + zahradní terasa

1 326 m2

Pozemek celkem

244 m2

Zastavěná plocha

60 m2

Garáž

Ikona dispozice

Dispozice 6+kk

Ikona koupelny

5x koupelna

Ikona WC

7x WC

Ikona garáže

Garáž pro 3 vozy

Ikona bazénu

Bazén

Ikona výtahu

Výtah zn. Schindler

Přehled

1PP Technické zázemí domu, prádelna, úklidová místnost 69 m²
1NP Hostovský pokoj/pracovna, koupelna, 2× WC (1× venkovní), šatna, velkorysý obývací prostor s kuchyní 99 m² 182 m²
2NP 3 prostorné pokoje s vlastní šatnou a koupelnou, 2× terasa 175 m²
Terasa 19 m²
3NP Master bedroom (39 m²) s vlastní koupelnou (19 m²) a šatnou (17 m²), kuchyňka 94 m²
Terasy 19 m² + servisní terasy
Levý obrázek sekce
Pravý obrázek sekce
Jedná se o samostatně stojící stavbu vilového typu s jedním podzemním a třemi nadzemními podlažími. Stavba byla dokončena na konci roku 2017. Spodní stavba betonové konstrukce má dvojitý hydroizolační vanový systém, Vrchní stavba je betonové konstrukce doplněná o nosné hutní nerezové prvky pro vytvoření prosklených stěn. Střecha je plochá s foliovou krytinou. Podlažími prochází prosklený výtah od firmy Schindler (bezpečnostní prvky a pryžové pásy) a schodiště. Fasáda je s pancéřovými omítkami. Okapové svody jsou v konstrukci stavby. Topný systém je vyjma koupelen s žebříčky proveden jako kombinace podlahového topení s moderními radiátory.
Levý obrázek sekce
Pravý obrázek sekce
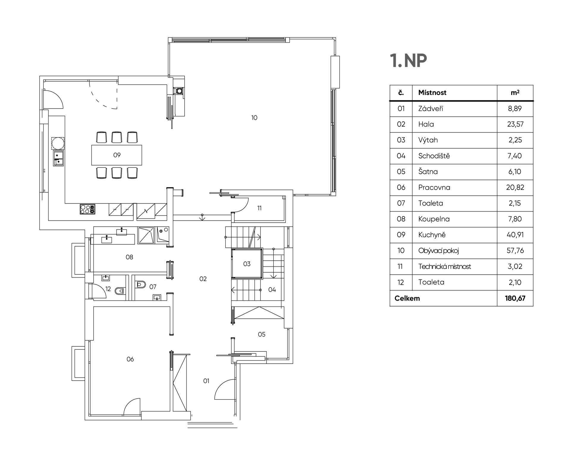
V 1. NP jsou prostory charakterově společného užívání. Hned po vstupu do domu je zádveří s navazující šatnou a pracovnou se samostatným vchodem ven, což je elegantní řešení v případě business využití. K dispozici je toaleta a oddělená koupelna, prosklený výtah zn. Schindler.
Levý obrázek sekce
Pravý obrázek sekce
Dominantou celého domu je prostorově velkorysý obývací pokoj s kuchyní (99m2), který je pomyslně oddělen od zbylých prostor dřevěnými posuvným dveřmi. Obývací prostor s kuchyní je nádherně prosvětlený, díky oknům přes celý prostor s výhledem do zelené zahrady. Na podlaze jsou dřevěné velkormátové kazety zn.Empiri.
Levý obrázek sekce
Pravý obrázek sekce
Eleganci celého prostoru dokresluje plynový designový krb viditelný z kuchyně i obývacího pokoje.
Levý obrázek sekce
Pravý obrázek sekce
Kuchyňská linka nabízí velké množství úložných prostor, skleněných prvků, zabudovaný kávovar, spíž, 2x americkou lednici, vinotéku. V kuchyni je velkorysý jídelní prostor pro více lidí.
Levý obrázek sekce
Pravý obrázek sekce
Dům má vyšší stropy, v obývacím pokoji s kuchyní je výška stropu ještě zdůrazněna 2 schody navíc k optickému vyrovnání prostoru plochy. Podlahy v celém objektu kromě suterénu a koupelen jsou z přírodního dřeva.
Levý obrázek sekce
Pravý obrázek sekce
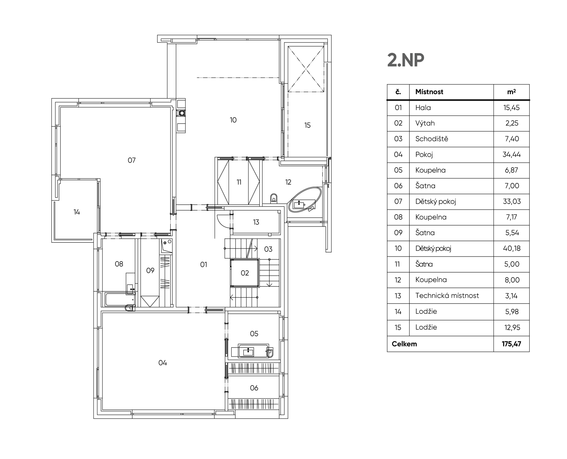
Ve 2. NP jsou tři prostorné pokoje. Každý pokoj má vlastní koupelnu a samostatnou šatnu. 2 pokoje mají vlastní lodžii, přičemž jedna lodžie disponuje italskou, elektricky ovládanou rolovací střechou. Jeden z pokojů má domácí kino. K dispozici na patře je i technická místnost. Koupelny v 2.NP a 3. NP jsou vybaveny vířivými vanami.
Levý obrázek sekce
Pravý obrázek sekce
Levý obrázek sekce
Pravý obrázek sekce
Levý obrázek sekce
Pravý obrázek sekce
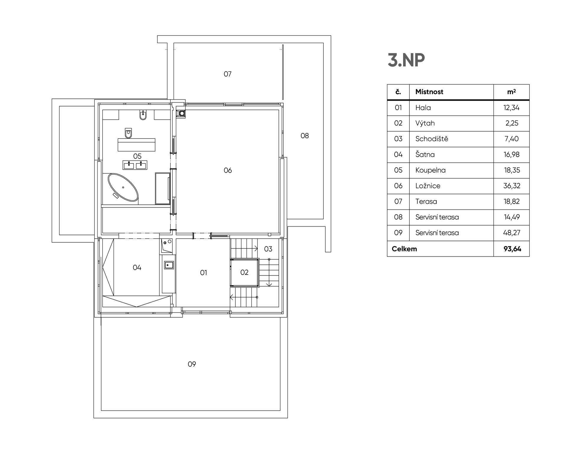
Ve 3. NP je opravdu velkorysé „master berdroom“, (36 m2) s koupelnou s rohovou vanou, sprchovým koutem a velkorysou samostatnou šatnou.
Levý obrázek sekce
Pravý obrázek sekce
Pro větší komfort je ve 3. NP domu před ložnicí instalovaná druhá kuchyňská linka. Z master ložnice je vstup na prostornou terasu (19m2) s krásným výhledem.
Levý obrázek sekce
Pravý obrázek sekce
Ve všech prostorách v domě jsou umístěny klimatizační jednotky. Celý dům je vybaven moderními designovými interiérovými světly. Velkoformátová okna mají automatické el. žaluzie s automatickou kontrolou síly větru.
Levý obrázek sekce
Pravý obrázek sekce
Z obývacího pokoje i kuchyně je vstup na prostornou terasu se zahradním nábytkem, která přímo vybízí pro společné sezení venku při západu slunce či pořádání garden party s přáteli.
Levý obrázek sekce
Pravý obrázek sekce
V domě je nainstalován zabezpečovací systém Jablotron s kamerovým přenosem, komunikační systém propojený s vchodem na pozemky. Interiérové dveře v celém domě převážně v zasunovacích pouzdrech.
Levý obrázek sekce
Pravý obrázek sekce
Vjezd do domu ze zajištěn přes automatickou bránu. Podél domu je již možné parkování pro několik aut a dlážděná cesta vede až do zadní části zahrady, kde je k dispozici další prostor pro parkování několika aut.
Levý obrázek sekce
Pravý obrázek sekce
Samostatným objektem je pak jednopodlažní stavba garáže (pro tři vozy) tři oddělené, samostatně přístupné. Jedna z garáží má multifunkční využití dílny a WC. Celá příjezdová cesta ke garáži je doplněna nadstandardním osvětlením.
Levý obrázek sekce
Pravý obrázek sekce
Udržovaná zahrada s výměrou 1009 m2 nabízí vlastníkům soukromí a klid. Je zde retenční nádrž na vodu napojená na dešťové svody hlavní stavby, rozvedený automatický závlahový systém. Z domu je přímý vstup na zahradní terasu s příjemným sezením. Zahrada je v noci příjemně osvětlena zahradními světly.
Levý obrázek sekce
Pravý obrázek sekce
Bazén je foliový, rozměr  3,5 x 7m, hloubka 1,2m, s fóliovým zastřešením, tepelným ohřevem a automatickou filtrací.
Levý obrázek sekce
Pravý obrázek sekce
Dále je zde do terénu částečně zapuštěná samostatná drobná stavba s plochou střechou provedená z monolitického betonu pro zahradní náčiní, sezení při bazénu atp. Kolem stavby je průchozí dlažba s terasou s přívodem vody a schody pro komunikaci s venkovním vyhřívaným bazénem.
Levý obrázek sekce
Pravý obrázek sekce
Oplocení pozemků je při přilehlých veřejných komunikacích provedeno kombinací pohledového betonu a nerezových plotových dílců s neprůhledným zakrytím. Vše v kvalitním provedení bez známek nadměrného opotřebení.
Levý obrázek sekce
Pravý obrázek sekce
V 1. PP (pod částí stavby) s užitnou plochou místností 69,98 m2 jsou technické místnosti převážně s podlahami tvořenými velkoformátovou dlažbou a úpravou stěn pohledovým betonem. Dále úklidová místnost s WC, kotelna celého domu.

Galerie - Interiér

Galerie - Exteriér

Lokalita a Okolí

Lokalita s perfektní dopravní dostupností z letiště, do centra Prahy, v blízkosti obchodních center a přírody.

Pro milovníky přírody a aktivního odpočinku je v blízkosti Lesopark Řepy, který začíná jen pár kroků za Plzeňskou ulicí. Tento park nabízí mnoho možností pro procházky, běhání, cyklistiku a další volnočasové aktivity. Kousek od domu se nachází lesopark Háje. V blízkosti je také přírodní koupaliště Motol, golfové hřiště Golf Club Praha či park Košíře-Motol, který poskytuje příjemné prostředí pro sport a relaxaci.

Tato lokalita tedy kombinuje klidné rodinné bydlení s výbornou dostupností a širokou nabídkou služeb a volnočasových aktivit, což z ní činí ideální místo pro život.

  • Letiště Praha Václava Havla: 15 minut jízdy
  • Centrum města: 17 minut jízdy
  • Golfové hřiště: 3 minuty jízdy
  • Nemocnice pro dospělé i děti: 5 minut jízdy
  • Přírodní rezervace: 5 minut chůze
  • Nákupní a zábavní centra: 3 minuty jízdy, 5 minut jízdy
  • Sportovní vyžití širokého spektra: dle typu, 3-10 minut jízdy
  • Školská zařízení: v dostupném okolí

Plánky

Cena na dotaz

(jedná se o prodej 100% podílu společnosti)

Kontakt